Group GL
Residential real estate
Commercial real estate
Industrial real estate
Hospitality
About Group GL
News
Jobs
Projects
Contact
EN
NL
EN
previous
next
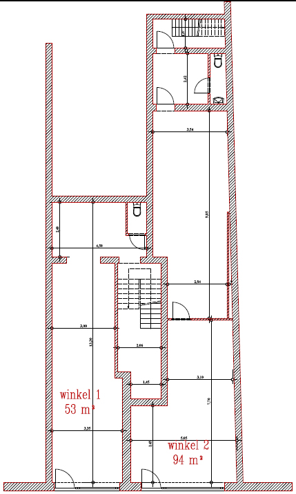
Commercial groundfloor for rent in Mol
€ 3.500 p/m
2400
476 m²
Questions about this property?
Bjorn Lenaers
Request more info
Share this property
Financial
Price:
€ 3.500 per month
Availability:
Immediately
Calculate your investment
Show simulator
Property
Surface:
476 m²
Energy
EPC unique code:
20241227-0003483683-NR-1
Downloads
6924758-plan.jpg
Contact us
Firstname
You need to enter your firstname.
Name
You need to enter your name.
E-mail
You need to enter your e-mail.
Phonenumber
Message
You need to enter a(n) message.
I wish more information
I wish a visit
I accept the
privacy policy
You must agree with our privacy policy.
I accept emails
I accept SMS
I accept newsletters
Send
Send this property to a friend
Your information
Firstname
You need to enter your firstname.
Name
You need to enter your name.
E-mail
You need to enter your e-mail.
Receiver information
Firstname
You need to enter the firstname from your friend.
Name
You need to enter the name from your friend.
E-mail
You need to enter the e-mail from your friend.
Message
You need to enter a(n) message.
I accept the
privacy policy
You must agree with our privacy policy.
Send
Calculate your investment